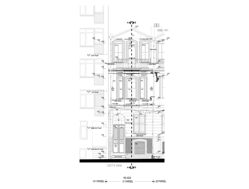
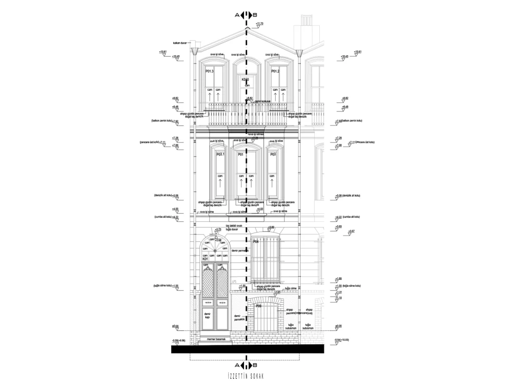
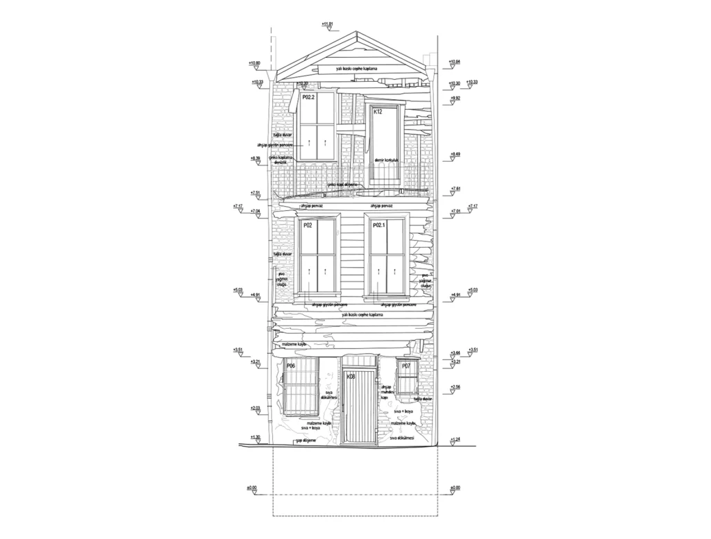
ÖNCESİ & SONRASI
Her yapı, geçmişten gelen bir hikâyeye sahiptir. Güven Mimarlık olarak, bu hikâyeyi koruyarak ve güçlendirerek, yapıları yeniden yaşanabilir, estetik ve fonksiyonel hâle getiriyoruz. “Öncesi & Sonrası” sayfamızda, projelerimizdeki dönüşüm süreçlerini sizlerle paylaşıyoruz. Rölöve, restorasyon ve mimari tasarım çalışmalarımız sayesinde; tarihi konaklardan modern yapılarımıza kadar her projenin önceki hâliyle sonraki hâli arasındaki farkı görebilirsiniz. Her fotoğraf, ekibimizin titiz çalışmasının, detaylara verdiğimiz önemin ve mimarlık anlayışımızın bir kanıtıdır. Amacımız; yalnızca fiziksel dönüşüm sağlamak değil, mekanlara yaşam, karakter ve değer katmaktır.



